阿达森装饰-专注办公装修17年

建材不合格 环保不达标 全额退款

联系人:顾经理
手 机:13306449001
电 话:0531-68686668
邮 箱:sdadasen@163.com
地 址:济南市北园大街9号荣盛时代国际6号楼1205室
办公室装修
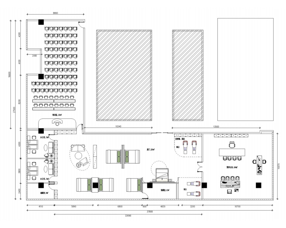
黄台家居广场床垫展厅办公室软装设计

名称:黄台家居广场床垫展厅办公室软装设计

详细信息

黄台家居广场内办公室软装设计,700 余平综合空间,集床垫专业展厅、办公区、会议室于一体,由专业团队统一软装设计。整体风格现代简约、动线流畅、功能齐全,兼顾展示形象、商务洽谈与日常办公需求,打造舒适、专业、有质感的一站式体验空间。
本项目位于济南黄台家居广场核心区域,总面积 700 余平方米,整合床垫品牌展厅、开放式办公区、多功能会议室三大功能板块。以专业软装设计为核心,统一规划色彩、灯光、材质与布局,兼顾品牌展示、商务接待、团队办公与会议培训需求。空间通透大气、格调统一、实用高效,充分体现品牌实力与专业服务能力。